GTL Paysagiste

Spazio

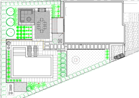
Harmonie et fluidité

Spazio traduit une recherche d’équilibre entre fonctionnalité et esthétique. Conçu pour une cour résidentielle de petite taille en milieu urbain, le projet optimise les parcours et les surfaces afin de fluidifier les usages quotidiens. L’aménagement articule avec précision les espaces de vie et les plantations, créant une composition cohérente où chaque élément contribue à une expérience extérieure harmonieuse, sobre et durable.

Élément central de convivialité

Le foyer au gaz, intégré dans la zone lounge sous une pergola bioclimatique, crée un point focal pour les rassemblements et renforce le lien entre les différents espaces. Son emplacement, combiné à l’aménagement paysager et aux éclairages, transforme cette zone en un espace multifonctionnel, confortable et esthétique, utilisable tout au long de la saison.

 

Découvrir notre service d’aménagement 

Optimisation des espaces de vie

La disposition des zones de vie a été pensée pour maximiser l’usage de chaque mètre carré de cette cour urbaine restreinte. Piscine, terrasses repas et lounge s’articulent de manière naturelle, facilitant les déplacements et offrant des perspectives ouvertes malgré la superficie limitée. Chaque espace conserve son identité tout en s’intégrant harmonieusement à l’ensemble, créant un parcours intuitif et agréable du matin au soir.

Une conception réfléchie

La disposition des zones de vie a été pensée pour maximiser l’usage de chaque mètre carré de cette cour urbaine restreinte. Piscine, terrasses repas et lounge s’articulent de manière naturelle, facilitant les déplacements et offrant des perspectives ouvertes malgré la superficie limitée. Chaque espace conserve son identité tout en s’intégrant harmonieusement à l’ensemble, créant un parcours intuitif et agréable du matin au soir.

5
Je suis extrêmement satisfaite du travail réalisé par GTL pour l’aménagement de notre cour. Leur équipe a conçu des plans détaillés qui ont facilité la visualisation du projet et permis des ajustements efficaces. L’exécution a été impeccable et rapide, avec une grande attention aux détails. Le résultat final est splendide, et je recommande vivement GTL pour leur professionnalisme et leur expertise. Merci pour cette magnifique transformation!

Josiane P.

Avis 5 étoile sur Google

Votre satisfaction sera notre première inspiration.

Chez GTL paysagiste, nous réalisons votre espace de rêves. Notre équipe professionnelle s’occupe de vos besoins, créant un jardin qui s’harmonise parfaitement avec votre maison et environnement.

Contactez-nous dès maintenant et laissez votre satisfaction être notre première inspiration!