GTL Paysagiste

Modulus

Transformation majeure

Ce réaménagement complet a été réalisé à la suite de travaux d’agrandissement et de rénovation de la résidence, nécessitant une refonte totale des espaces extérieurs. L’objectif était de reconnecter la maison à son environnement en créant une cour cohérente, adaptée aux nouveaux résidents et pensée pour accompagner leur quotidien. Entre l’installation de la piscine, la création de terrasses dédiées aux repas et au repos, l’ajout d’une pergola et l’intégration d’un éclairage d’ambiance, chaque intervention a été coordonnée pour offrir un espace cohérent, moderne et chaleureux.

Aménagement structuré et harmonieux

Ce projet transforme la cour en un espace extérieur moderne et fonctionnel. La piscine centrale, bordée de dalles et d’une terrasse en bois composite, sert de point focal et s’intègre parfaitement aux zones repos et repas. La disposition géométrique des dalles et des plantations crée des lignes nettes tout en guidant la circulation. Chaque détail, de l’intimité assurée par la végétation aux matériaux choisis pour leur durabilité et leur rendu visuel, contribue à un aménagement réfléchi et contemporain.

Découvrir notre service d’aménagement 

Contraintes techniques transformées en opportunités

Le site présentait plusieurs défis importants qui ont orienté la conception du projet. La présence de servitudes pluviales et électriques, la proximité d’une zone de marais protégée ainsi qu’un affaissement du terrain à l’arrière exigeaient une planification rigoureuse. La gestion des eaux a notamment été repensée grâce à l’intégration d’un drainage dirigé vers la rue et d’un bassin de récupération d’eau contribuant à l’arrosage du potager.

Le nivelage complet du terrain, le remplacement des installations existantes et la correction des structures vieillissantes ont permis de stabiliser l’ensemble de la cour tout en améliorant sa fonctionnalité à long terme. Ces interventions techniques, bien que discrètes visuellement, constituent la base durable de l’aménagement.

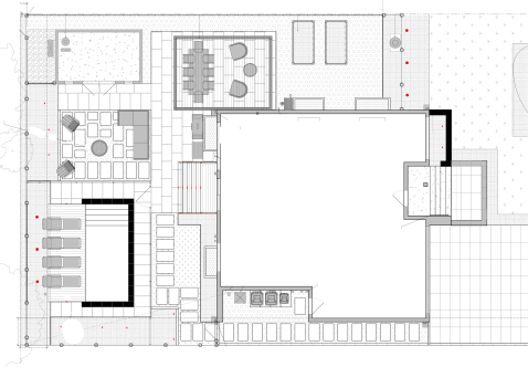
Une conception réfléchie

La conception a débuté par une analyse approfondie du certificat de localisation intégrant les agrandissements projetés de la résidence. Le plan d’aménagement a permis d’orchestrer l’implantation de la piscine creusée, des terrasses, des espaces de repos et des circulations tout en respectant les contraintes réglementaires et environnementales du site. Cette approche globale a facilité la coordination des infrastructures techniques : électricité, éclairage, équipements de piscine et drainage, assurant une réalisation fidèle à la vision initiale.

5
Ma cour est petite, mais GTL a vraiment réussi à optimiser l’espace! Le design est superbe et les travaux se sont déroulés sans tracas. Je recommande à 100 %!

Stéphanie B.

Avis 5 étoile sur Google

Votre satisfaction sera notre première inspiration.

Chez GTL paysagiste, nous réalisons votre espace de rêves. Notre équipe professionnelle s’occupe de vos besoins, créant un jardin qui s’harmonise parfaitement avec votre maison et environnement.

Contactez-nous dès maintenant et laissez votre satisfaction être notre première inspiration!